Lokal użytkowy Koszęcin, Cegielniana
Koszęcin Pokaż na mapie ›
Ogłoszenie archiwalne Wygasło: Czwartek, 23 Październik, 2025 18:12
542 651 zł
Szczegóły ogłoszenia
- Kategoria: Biura i lokale / Sprzedaż
- Przeznaczenie:Handel i Usługi
- Powierzchnia:58 m2
- Sprzedaż:Pośrednik
- Cena: 542 651 zł
Opis oferty
Na sprzedaż - pakiet dwóch lokali usługowych!1A+1B
Funkcjonalne, słoneczne wnętrza - idealne na kawiarnie, punkt usługowy, mały handel lub biura.
Biuro Nieruchomości BMC prezentuje kompleks dwóch lokali usługowych znajdujących się naprzeciw siebie, o łącznej powierzchni 58,05 m² w cenie 446 985 zł Netto + 23% VAT
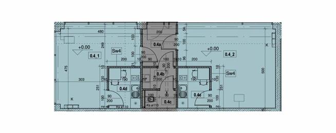
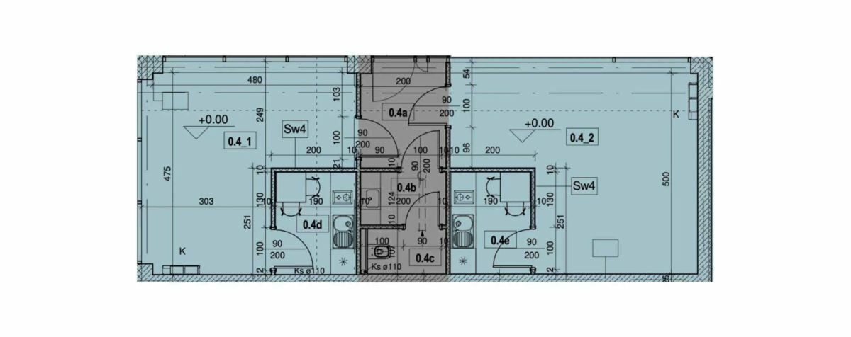
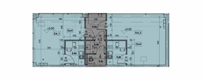
Rozkład pomieszczeń:
Lokal użytkowy: 39,93 m² - przestronne pomieszczenie główne
Zaplecze socjalne: 9,08 m² - miejsce na magazyn, kuchnię, zaplecze pracownicze
Korytarz wspólny: 4,45 m² - komunikacja między lokalami
Przedsionek + kabina WC: 4,59 m² - niezależna toaleta dla klientów/pracowników
Atuty nieruchomości:
Duże witryny okienne - świetne doświetlenie i dobra widoczność z zewnątrz
Funkcjonalny układ - łatwy do adaptacji na różne potrzeby
Dwa niezależne wejścia - możliwość prowadzenia dwóch działalności np cukiernia i kawiarnia
Estetyczna, spokojna okolica - komfort dla klientów i pracowników
Dobra lokalizacja w południowej części Koszęcina
Miejsca postojowe bezpośrednio przed lokalem - wygodny dostęp dla samochodów i pieszych
ogrzewanie podłogowe - Indywidualna pompa ciepła
Klimatyzacja z funkcją grzania
Lokal idealny pod:
kawiarnie
usługi kosmetyczne / fryzjerskie
butik, sklepik osiedlowy
punkt kurierski
gabinet lekarski
działalność społeczna lub fundacja
biuro rachunkowe
Zainteresowany? Zapraszamy do kontaktu i zapoznania się ze szczegółami w Biurze Sprzedaży!
Opiekun oferty: Adam Kolano
Telefon: 578 - pokaż numer telefonu -
Koszty i dodatkowe opcje:
Koszty notarialne i sądowe po stronie kupujących: taksa notarialna, opłata za wniosek do księgi wieczystej, wypisy aktu notarialnego
Kupujący zwolniony jest z prowizji dla biura nieruchomości.
Kupujący zwolniony jest z podatku 2% PCC (podatek VAT w cenie brutto)
Numer oferty: 133477
Sprawdź zainteresowanie tym ogłoszeniem
Wyświetlenia
Data dodania
Ostatnio widziany
Obserwujących
Wysłane zapytania
Odsłony telefonu
Powiadom o podobnych ogłoszeniach
Lokalizacja: Koszęcin
Kategoria: Nieruchomości » Biura i lokale » Sprzedaż
Cena: od 461500 zł do 624000 zł Powierzchnia : od 49 m2 do 67 m2
Chcę otrzymywać powiadomienia o nowych ofertach
To ogłoszenie jest archiwalne i może być nieaktualne.
- Wypromuj ogłoszenie
- Zgłoś naruszenie
- Drukuj ulotkę
- Edytuj/usuń ogłoszenie
- Udostępnij ogłoszenie
- Dodaj na Facebook






















