Dom Koszęcin, Słoneczna
Koszęcin Pokaż na mapie ›
Ogłoszenie archiwalne Wygasło: Niedziela, 05 Kwiecień, 2026 18:21
445 000 zł
3248 zł/m2
Szczegóły ogłoszenia
- Kategoria: Domy / Sprzedaż
- Powierzchnia:137 m2
- Liczba pokoi:5 i więcej pokoi
- Pow. działki:676 m2
- Rynek:Wtórny
- Rok budowy:1970
- Sprzedaż:Pośrednik
- Cena: 445 000 zł / 3248 zł/m2
Opis oferty
Biuro Nieruchomości BMC prezentuje na sprzedaż przestronny dom jednorodzinny położony w spokojneji zielonej części miejscowości Koszęcin (powiat lubliniecki).
Nieruchomość znajduje się przy ul. Słonecznej, na działce o powierzchni 676 m²,
w sąsiedztwie domów jednorodzinnych i terenów zielonych.
Parametry nieruchomości:
- Powierzchnia użytkowa domu: ok. 137 m².
- Powierzchnia działki: 676 m²
- Budynek w całości podpiwniczony, ze strychu możliwa adaptacja na cele mieszkalne
- Konstrukcja: murowana (z pustaka i częściowo drewna)
- Stropy betonowe, dach drewniany pokryty papą
- Rok budowy: ok. lata 70-80
- Ogrzewanie: centralne - piec węglowy z 2015 r.
- Media: prąd (częściowo nowa instalacja elektryczna), kanalizacja; wodociąg (licznik wody zdemontowany)
Układ pomieszczeń:
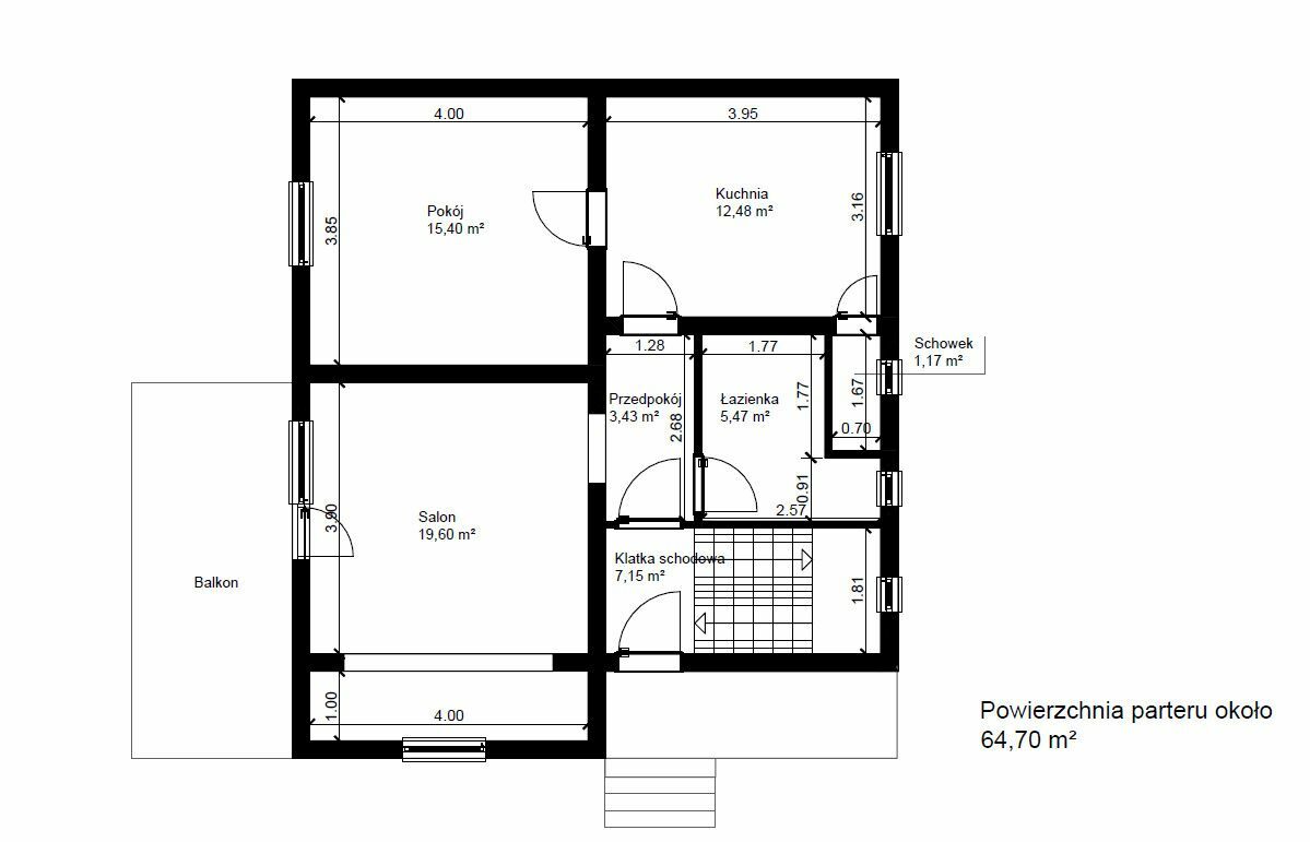
Parter (ok. 64,70 m²):
- Salon z balkonem - 19,60 m²
- Pokój - 15,40 m²
- Kuchnia - 12,48 m²
- Łazienka - 5,47 m²
- Schowek - 1,17 m²
- Przedpokój - 3,43 m²
- Klatka schodowa - 7,15 m²
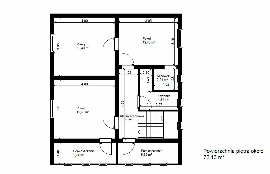
Piętro (ok. 72,13 m²):
- Pokój - 15,40 m²
- Pokój - 15,60 m²
- Pokój - 12,48 m²
- Łazienka - 4,34 m²
- Schowek - 2,24 m²
- Przedpokój i klatka schodowa - 10,71 m²
- Dwa dodatkowe pomieszczenia z wejściem na strych - 5,74 m² i 5,62 m²
Dodatkowo:
Całkowite podpiwniczenie budynku - miejsce na kotłownię, pralnię, spiżarnię itp.
Strych z możliwością adaptacji (np. na pokój hobby lub dodatkowe sypialnie).
Działka i otoczenie:
Działka o powierzchni 676 m², w całości ogrodzona, z dojazdem drogą asfaltową.
Na terenie posesji znajduje się:
- Garaż wolnostojący,
- Pomieszczenia gospodarcze w bryle budynku mieszkalnego,
Miejsce na ogród lub strefę rekreacyjną.
Lokalizacja- Koszęcin, ul. Słoneczna:
Koszęcin to urokliwa miejscowość w powiecie lublinieckim, znana m.in. z Zespołu Pieśni i Tańca “Śląsk” oraz malowniczych terenów leśnych.
W okolicy znajdują się szkoły, sklepy, przychodnia, przedszkole oraz przystanki komunikacji publicznej.
Dogodne połączenia drogowe zapewniają szybki dojazd do większych miast:
Lubliniec - ok. 10 km
Tarnowskie Góry - ok. 25 km
Częstochowa - ok. 40 km
Cicha, spokojna okolica, idealna dla rodzin lub osób poszukujących odpoczynku od miejskiego zgiełku.
Atuty nieruchomości:
- Funkcjonalny układ pomieszczeń
- Pełne podpiwniczenie i możliwość adaptacji strychu
- Działka ogrodzona i zagospodarowana
- Spokojna, zielona lokalizacja z szybkim dostępem do infrastruktury
- Garaż i pomieszczenia gospodarcze
Nieruchomość dostępna wyłącznie w ofercie Biura Nieruchomości BMC.
Zapraszamy do kontaktu w celu umówienia prezentacji.
Koszty ponoszone przez Kupującego przy zakupie nieruchomości:
Prowizja pośrednika: 3% + VAT (czyli 3,69% brutto, nie mniej jak 4.000 złotych) od ceny transakcyjnej - za obsługę transakcji przez biuro nieruchomości
Koszty notarialne i sądowe: taksa notarialna, opłata za wniosek do księgi wieczystej, wypisy aktu notarialnego,
Podatek PCC: 2% wartości transakcji.
Numer oferty: 460508
Sprawdź zainteresowanie tym ogłoszeniem
Wyświetlenia
Data dodania
Ostatnio widziany
Obserwujących
Wysłane zapytania
Odsłony telefonu
Powiadom o podobnych ogłoszeniach
Lokalizacja: Koszęcin
Kategoria: Nieruchomości » Domy » Sprzedaż
Cena: od 378500 zł do 512000 zł Powierzchnia : od 116 m2 do 158 m2
Chcę otrzymywać powiadomienia o nowych ofertach
To ogłoszenie jest archiwalne i może być nieaktualne.
- Wypromuj ogłoszenie
- Zgłoś naruszenie
- Edytuj/usuń ogłoszenie
- Udostępnij ogłoszenie
- Dodaj na Facebook


















